


CSNB系列交流配電系統(tǒng)(AC230/400V)浪涌保護器(電涌保護器)是依據GB18802.1、IEC61643-1防雷標準設計,適用交流配電系統(tǒng)電源及用電設備防護,通過國家專業(yè)檢測機構的雷電防護試驗。浪涌保護器在過電壓產生后可瞬時將被保護線路接入等電位系統(tǒng)中,使設備各端口等電位,同時釋放在電路上因雷電感應而產生的大量脈沖電流,將過電壓鉗位,降低設備各端口的電壓差,通過防雷系統(tǒng)前、后級浪涌保護器的配合,使雷電能逐級釋放,達到保護配電電源及終端用電設備的目的。
立即詢價 (周一至周五 9:00-18:00)
CSNB系列交流配電系統(tǒng)(AC230/400V)浪涌保護器(電涌保護器)是依據GB18802.1、IEC61643-1防雷標準設計,適用交流配電系統(tǒng)電源及用電設備防護,通過國家專業(yè)檢測機構的雷電防護試驗。浪涌保護器在過電壓產生后可瞬時將被保護線路接入等電位系統(tǒng)中,使設備各端口等電位,同時釋放在電路上因雷電感應而產生的大量脈沖電流,將過電壓鉗位,降低設備各端口的電壓差,通過防雷系統(tǒng)前、后級浪涌保護器的配合,使雷電能逐級釋放,達到保護配電電源及終端用電設備的目的。


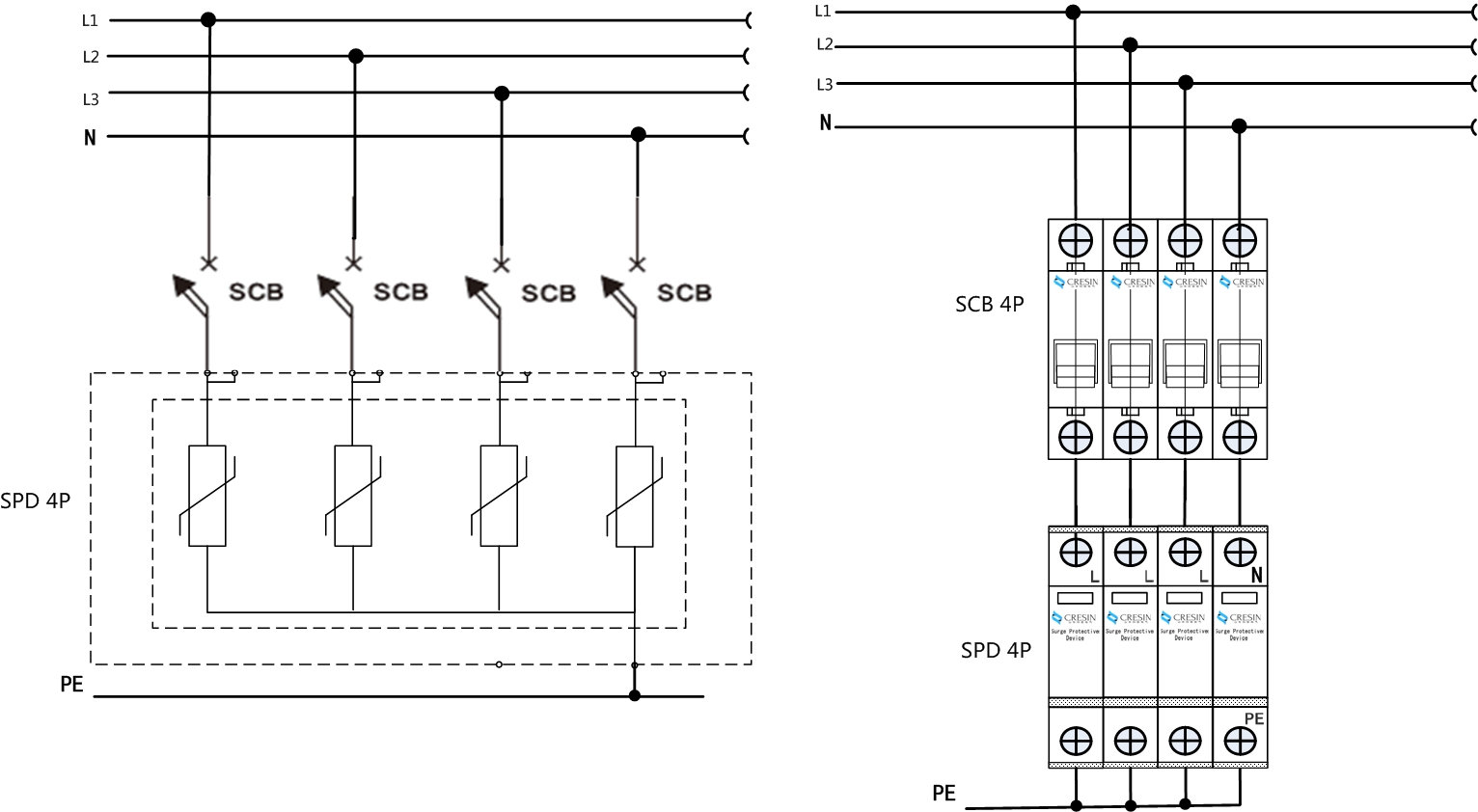
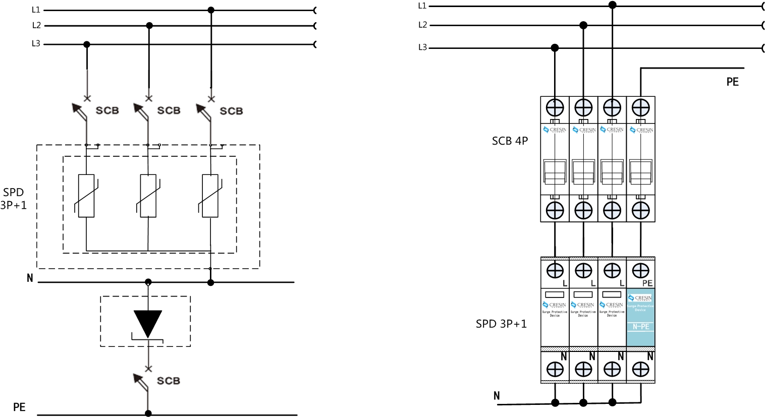
Installation instructions


Product size

| SPD型號 | CSNB-100 |
|---|---|
| 最大持續(xù)工作電壓Uc | AC275,385,420,440 |
| 沖擊放電電流Iimp(10/350μs) | |
| 標稱放電電流In(8/20μs) | 60kA |
| 最大放電電流Imax(8/20μs) | 100kA |
| 保護水平Up | ≤2.0kV |
| 響應時間 | ≤25ns |
| 漏電流 | 15μA |
| 保護模式 | L/N-PE;L-N N-PE |
| 設計標準 | GB18802.1 |
| 接入導線截面 | 25 mm2 |
| 接入接地線導線截面 | 35 mm2 |
| 接線方式 | 端子接線 |
| 遙信接點 | 可選 |
| 報警接點 | 可選 |
| 極數 | 1P、2P、3P、4P |
| 外殼材料 | 阻燃性塑料外殼 |
| 安裝方式 | 35mm標準導軌安裝 |
| 操作溫度 | -40℃~+80℃ |
| 存儲溫度 | -40℃~+80℃ |
| 相對濕度 | 5~95%(無凝露) |
| 防護等級 | IP20 |
| 海拔高度 | 不超過3000m |
| 產品保質期 | 3年 |
2018-11-19
CSNB-100 系列浪涌保護器(電涌保護器)是依據 GB18802.1、IEC61643-1 防雷標準設計,適用交流 50Hz,220v/380v 及以下的TN-S、TN-C-S、TT、IT 等供電系統(tǒng),每個模塊的標稱放電電流In 可達60kA(8/20μs), 最大放電電流 Imax 可以達到 100kA(8/20μs),通過國家專業(yè)檢測機構的雷電防護 II 類試驗,適用于雷擊風險較高地區(qū)(LPZ2 或 LPZ2 與 LPZ3 交界區(qū)),可應用于交流電源系統(tǒng)的二級防雷保護。
暫無相關下載
IF YOU ARE INTERESTED IN OUR PRODUCTS,YOU CAN